Handige klussers opgelet! Ben je op zoek naar een woning die je volledig naar eigen inzicht kunt moderniseren en inrichten? Dan biedt deze eenvoudige jaren ’30 woning een mooie kans. Met een woonoppervlakte van circa 60 m², gelegen op een perceel van 67 m², vormt dit huis een uitstekende basis voor wie graag de handen uit de mouwen steekt.
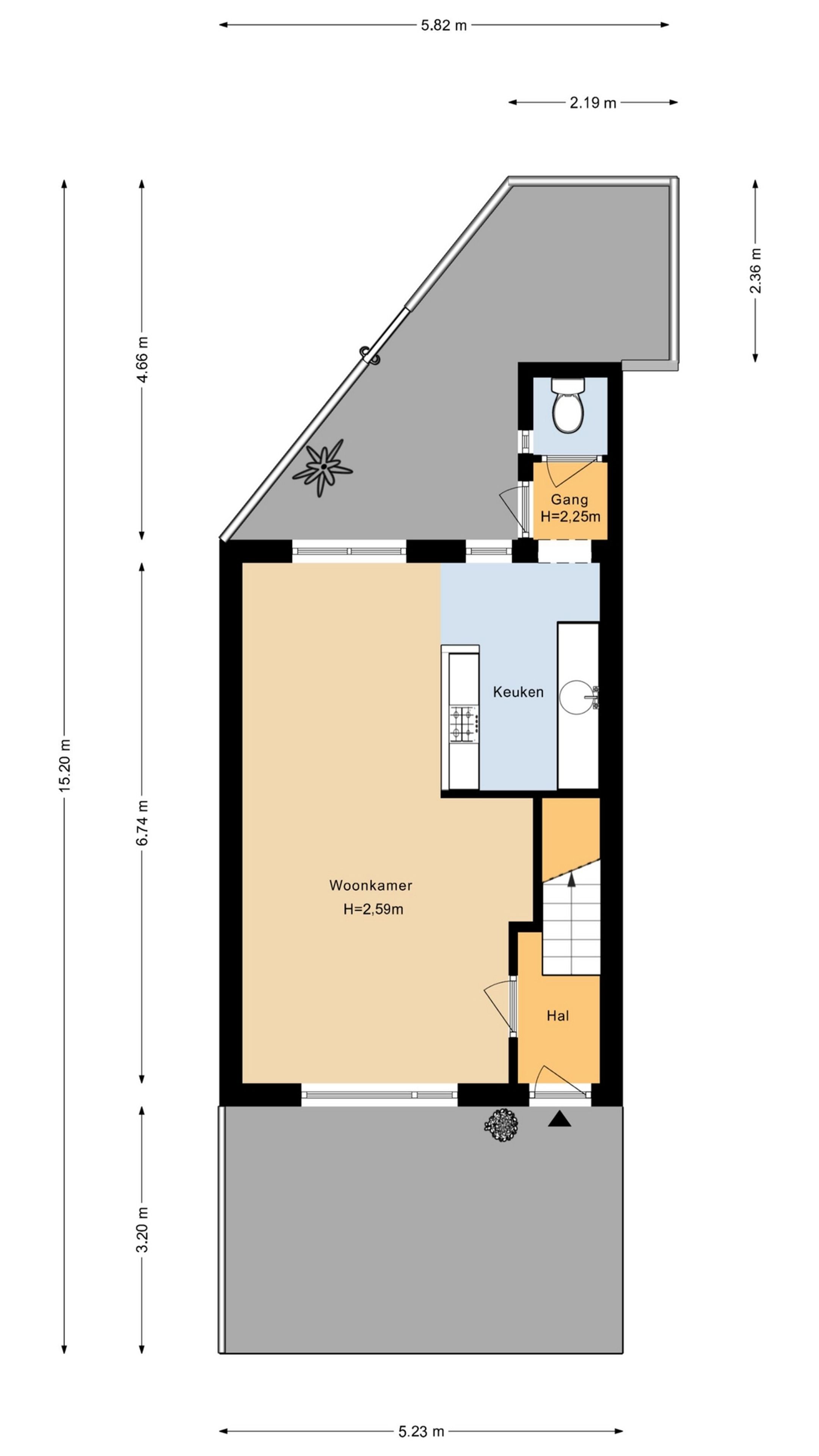
De woning beschikt over een lichte woonkamer met een prettige sfeer dankzij de natuurlijke lichtinval. Aan de achterzijde bevinden zich de keuken en het toilet.
Op de verdieping zijn twee slaapkamers en een badkamer aanwezig. Beide slaapkamers en de badkamer zijn voorzien van een dakkapel, wat zorgt voor extra ruimte en licht en de kamers verrassend praktisch maakt. Via een vlizotrap is de bergzolder bereikbaar, ideaal voor het opbergen van spullen die je niet vaak nodig hebt!
De achtertuin is gelegen op het noordwesten, waar je kunt genieten van de middag- en avondzon. De voortuin draagt bij aan een gevoel van privacy, doordat er een ruime afstand is tussen de stoep en de gevel van de woning.
De ligging maakt het geheel extra aantrekkelijk. De woning bevindt zich in een rustig en karakteristiek jaren ’30 straatje met een prettige woonomgeving. Het centrum en het station zijn zowel lopend als met de fiets goed bereikbaar. In de directe omgeving zijn diverse scholen aanwezig en een middelbare school is eenvoudig per fiets te bereiken, wat de woning ook geschikt maakt voor (toekomstige) gezinnen.
Kortom, een woning met potentie op een fijne locatie, ideaal voor wie een project zoekt en de mogelijkheid wil benutten om een huis geheel naar eigen smaak te transformeren tot een comfortabel thuis!
De woning beschikt over een energielabel A, waarbij het belangrijk is te vermelden dat dit een bestaand, administratief vastgesteld label betreft uit een periode waarin een fysieke opname nog niet verplicht was. Het label is daardoor niet gebaseerd op een inspectie volgens de huidige methodiek. Gezien de huidige normen en beoordelingswijze ligt het in de lijn der verwachting dat een nieuw vast te stellen energielabel aanzienlijk lager zal uitvallen.
Richtprijs € 179.000,-- k.k.
Aanvaarding direct
Lees de volledige omschrijving