Menu
Home
Media
Overige documenten
Kenmerken
Extra info
Energie
Verduurzamen
Zonnepanelen
Zonnestand
Kaart / Streetview
Buurtstatistieken
Buurtinformatie
Social
Meer weten?
Diensten
Verkoop
Aankoop
Taxatie
Waardebepaling
Bezichtiging aanvragen
Move.nl
Terug naar vorige pagina
Gratis hypotheekberekening
Deel op social media
Fotogalerij
Klik op een foto om te vergroten
Bekijk alle foto's
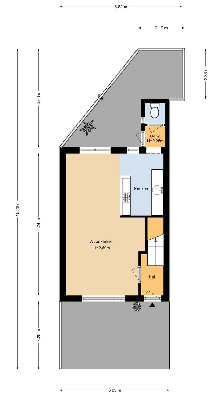
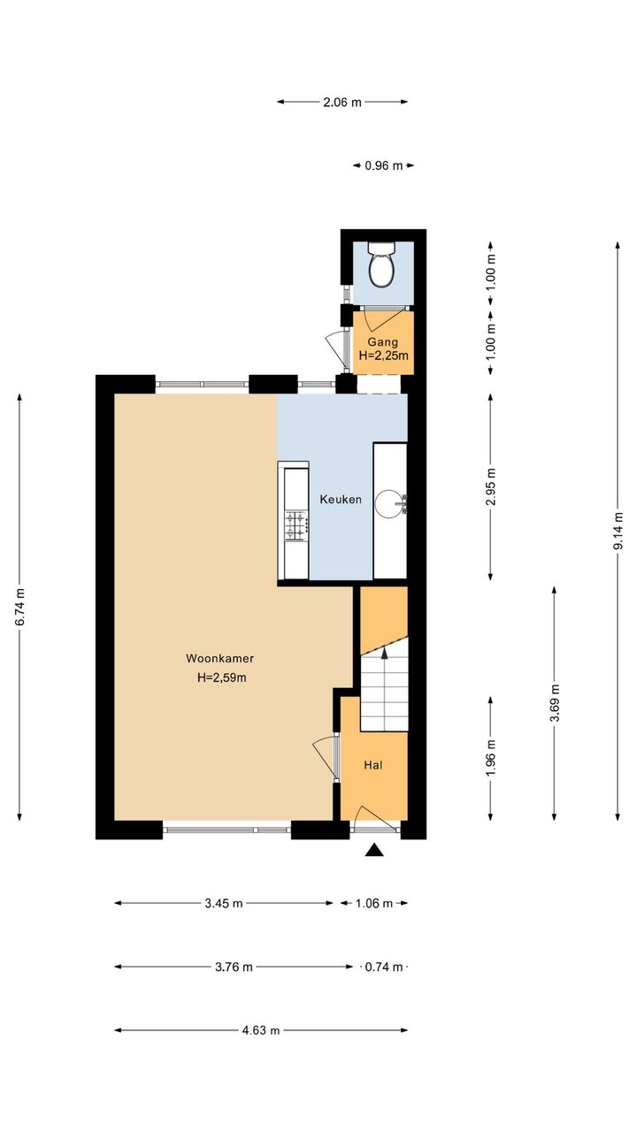
Plattegronden
Plattegronden
Previous
Next
Previous
Next
Geïnteresseerd in deze woning?
Neem contact met ons op